Opis nieruchomości
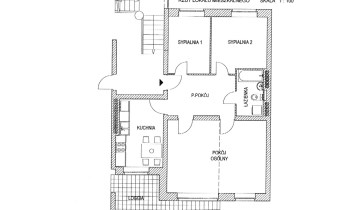
Przestronny, trzypokojowy lokal mieszkalny w centrum miasta, Jana Ostroroga.Na powierzchnię 64,64 m2 składa się:
- salon z wyjściem na balkon
- kuchnia z wyjściem na balkon
- pokój
- pokój
- przedpokój
- łazienka
- WC
Istnieje możliwość przebudowy mieszkania na 4 pokojowe.
Do lokalu przynależy duży balkon oraz piwnica
Miesięczny czynsz administracyjny liczony dla trzech osób wynosi około 820 zł i zawiera między innymi zaliczkę na ogrzewanie, zimna oraz ciepłą wodę czy wywóz śmieci.
Lokalizacja: osiedle, w pobliżu liczne punkty handlowo usługowe.
Nota prawna
Opis oferty zawarty na stronie internetowej sporządzany jest na podstawie oględzin nieruchomości oraz informacji uzyskanych od właściciela, może podlegać aktualizacji i nie stanowi oferty określonej w art. 66 i następnych K.C.Szczegóły



